Rif. L1015 - Lido di camaiore a due passi dal mare villetta ristruttuirata

Descrizione

Lido Di Camaiore, Bifamiliare Ristrutturata, 150 Mq, Posizione Eccezionale A Pochi Passi Dalla Passeggiata E Dal Pontile

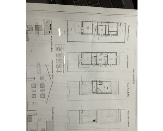
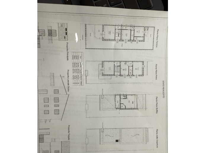
L'immobile Catastalmente è Un'unica Unità, Ma Nella Ristrutturazione Sono Stati Ricavati 2 Appartamenti Indipendenti Che Volendo, Facilmente ricollegabili da una porta 

Spazio Esterno Libero Su 3 Lati, Si Accede Sia Da Cancello Carrabile Che Pedonale, Ampia Terrazza Sul Fronte E Spazio Sul Retro Ben Attrezzato Dove Troviamo Anche Una Doccia Esterna.

Al Piano Terra Abbiamo La Prima Unità A Cui Si Accede Dalla TerrazzaD'ingresso abitabile, Soggiorno Con Cucina A Vista, Il Disimpegno Conduce Alla Zona Notte Che Ospita 2 Ampie Camere Matrimoniale Di Cui Una Con Bagno , E Un Ulteriore Bagno Che Serve Il Resto Della Casa.

Al Primo Piano Dove Troviamo Il Secondo Appartamento Da Cui Si Accede Dalla Parte Laterale Dell'edificio, Entrando Dal Portone Blindato Da Comoda Scala Interna Si Giunge Nel Disimpegno; Da Una Parte Abbiamo Uno Spazioso E Luminoso Soggiorno Con Doppio Divano Letto Con Affaccio Su Balcone, Dall'altra Parte, Zona Cucina Pranzo A Vista, Un' Ampia Camera Matrimoniale E Bagno Finestrato. Una Moderna Scala A Chiocciola Conduce Alla Mansarda Dove Troviamo Un Ulteriore Bagno Con Doccia, Un Grande Vano Da Destinare A Camera E Uno Spazio Utilizzabile Come Guardaroba.

Infissi In Pvc, Doppio Vetro, Aria Condizionata, Posti Auto E Bici.

La Particolarità Di Quest'immobile è La Sua Attuale Divisione Che Permette L'uso Con La Massima Indipendenza Per 2 Famiglie O Anche Per Poterne Mettere Una Parte a reddito. 

Zona è Ben Servita E Residenziale a pochi passi dal mare .

Per Motivi Di Privacy, L'indirizzo Segnalato Sulla Mappa è Volutamente Diverso, L'immobile Si Trova Comunque Nelle Vicinanze. Il Presente Annuncio Non Costituisce Elemento Contrattuale, Vi Preghiamo Di Contattarci Per Sincerarvi Della Disponibilità Della Casa E La Sua Precisa Corrispondenza Alla Descrizione Dell'annuncio.

Prezzo

€ 670.000

Caratteristiche

Tipologia:

Bifamiliare

Contratto:

Vendita

Località:

Camaiore - Lido Di Camaiore

Superficie (mq):

150

Num. Vani:

7

Num. Camere:

4

Num. Bagni:

4

Cucina:

Abitabile

Riscaldamento:

Autonomo

Garage:

PostoAuto

Condizionatore:

Si

Condizioni:

Ristrutturato

Cl. Energetica:

C

Galleria fotografica

Contattaci ora, gratis e senza impegno

* Nome e Cognome:

* E-mail:

Telefono:

Oggetto:

Messaggio:
Controllo Antispam*: Qual è il numero tra 9 e 11?

Presto il consenso al trattamento dei miei dati personali come specificato nella pagina dell'informativa Privacy

Presto il consenso a inviare al mio domicilio o al mio indirizzo di posta elettronica, periodica documentazione sulle tariffe e sulle offerte praticate.