Rif. L150 - Lido di camaiore villetta bifamiliare

Descrizione

Lido di Camaiore Villetta Bifamiliare
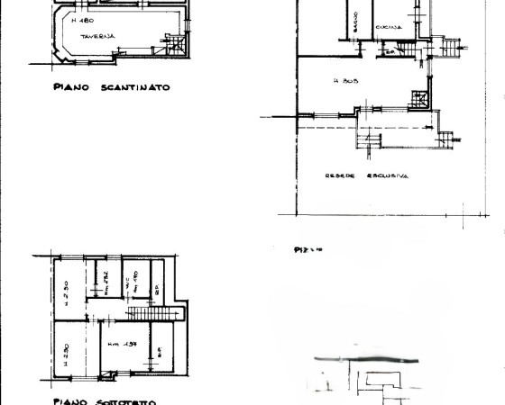
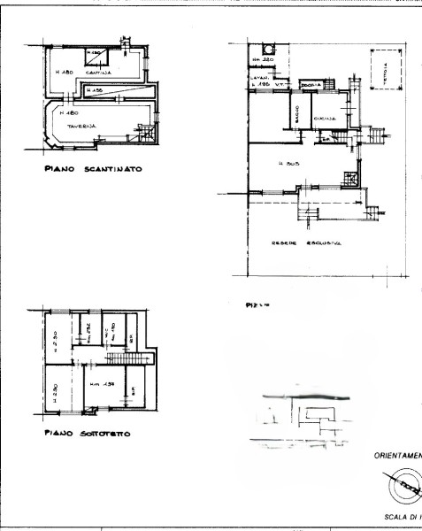
Lido di Camaiore in Rinomata zona a poco più di 1km dal mare Vendesi Villetta in Bifamiliare con giardino su tre lati , disposta su tre livelli. AL piano rialzato ci accoglie un grazioso porticato. Entrando si accede ad un ampia sala dove e' possibile ripristinare la camera originale, dal disimpegno si prosegue per la cucina che risulta abitabile e con accesso al giardino, troviamo poi la camera padronale con attiguo il bagno con doccia finestrato e un comodo ripostiglio sottoscala. Dalla sala e' possibile riaprendo un arco, accedere alle scale che portano al piano superiore mansardato. Sempre dal soggiorno si accede alla cantina composta da due grandi stanze adibite a zone relax , camino e cucina in muratura, comunicanti con l'esterno da seconda scala con piccolo servizio wc. Il piano superiore mansardato attualmente e' indipendente dalla casa principale con accesso esterno, ed e' cosi composto: Salendo dalle scale si accede ad ingresso disimpegno, sala, tinello con cucina e grazioso camino, camera matrimoniale , bagno con doccia. Le stanze godono di ottima luminosità grazie alle finestre a parete. La proprietà e' corredata da giardino sui tre lati della casa con accesso sia pedonale che carrabile . Nel giardino e' possibile posteggiare almeno due auto, portico per moto e bici e comoda lavanderia esterna. Forno a legna. L'immobile si presenta in ottimo stato di manutenzione grazie alla cura conservativa operata negli anni , gode inoltre di Buona esposizione ed e' inserita in un bel contesto residenziale vicino a tutti i servizi. Ideale per due famiglie o anche come investimento mettendo una porzione immobile a a reddito. L'indirizzo non e' corretto per questione di privacy , per maggiori informazioni contattare l'agenzia immobiliare simona

Prezzo

€ 595.000

Caratteristiche

Tipologia:

Bifamiliare

Contratto:

Vendita

Località:

Camaiore - Lido Di Camaiore

Superficie (mq):

120

Num. Vani:

4

Num. Camere:

3

Num. Bagni:

2

Cucina:

Abitabile

Riscaldamento:

Autonomo

Garage:

PostoAuto

Giardino:

Privato

Condizionatore:

Si

Condizioni:

Ottimo

Dist. mare (m):

1200

Dist. centro (m):

500

Cl. Energetica:

G

IPE:

1 kWh/m2

Galleria fotografica

Contattaci ora, gratis e senza impegno

* Nome e Cognome:

* E-mail:

Telefono:

Oggetto:

Messaggio:
Controllo Antispam*: Qual è il numero tra 2 e 4?

Presto il consenso al trattamento dei miei dati personali come specificato nella pagina dell'informativa Privacy

Presto il consenso a inviare al mio domicilio o al mio indirizzo di posta elettronica, periodica documentazione sulle tariffe e sulle offerte praticate.